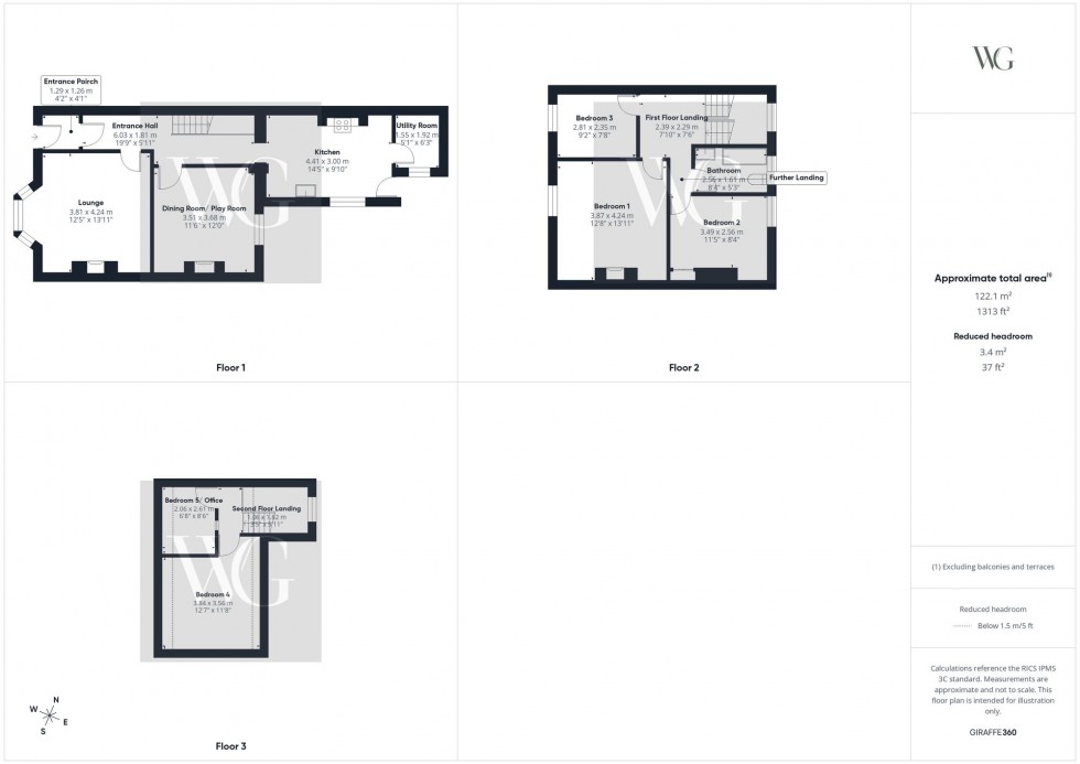
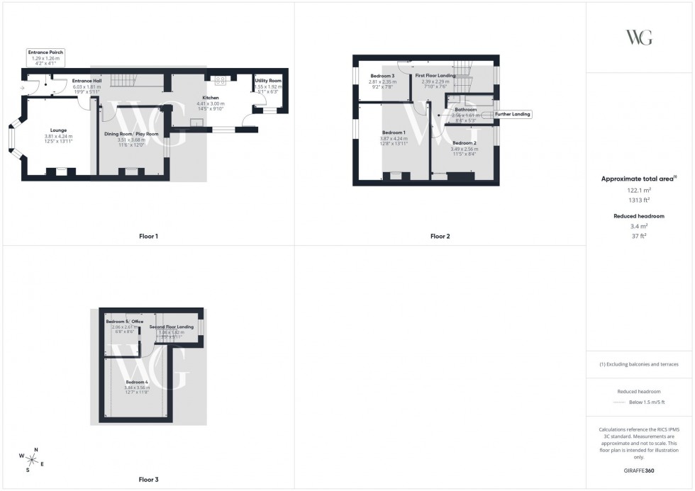
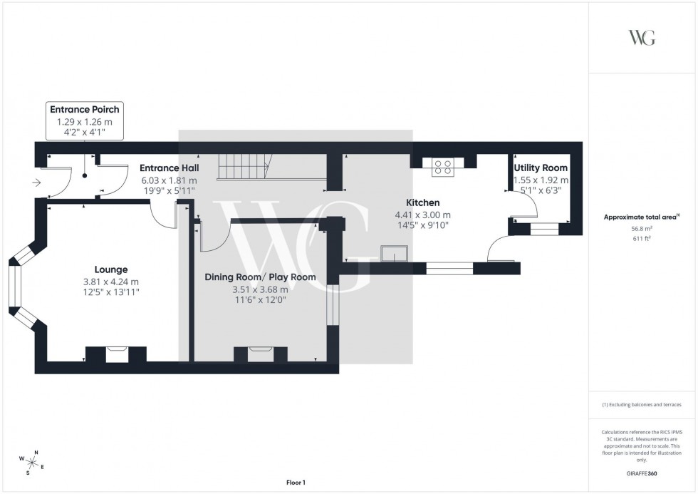
Dating back to 1896. A beautifully presented mid-terraced period family home offering spacious and versatile accommodation arranged over multiple floors. The property provides four to five bedrooms, making it ideal for growing families or those requiring flexible living space.
The house has been significantly improved by the current owners while retaining a wealth of attractive original period features, blending character with modern comfort. Benefits include gas central heating to the ground and first floor, electric heating to the second floor and uPVC double glazing throughout.
To the rear is a generous, well-maintained garden, perfect for family life and entertaining, along with a substantial brick-built outbuilding/ workshop offering excellent storage or potential for a variety of uses (subject to any necessary consents).
Situated in a convenient town location, the property is within easy reach of all local amenities, schools, shops, and transport links. This is a superb family home that must be viewed to be fully appreciated.





































