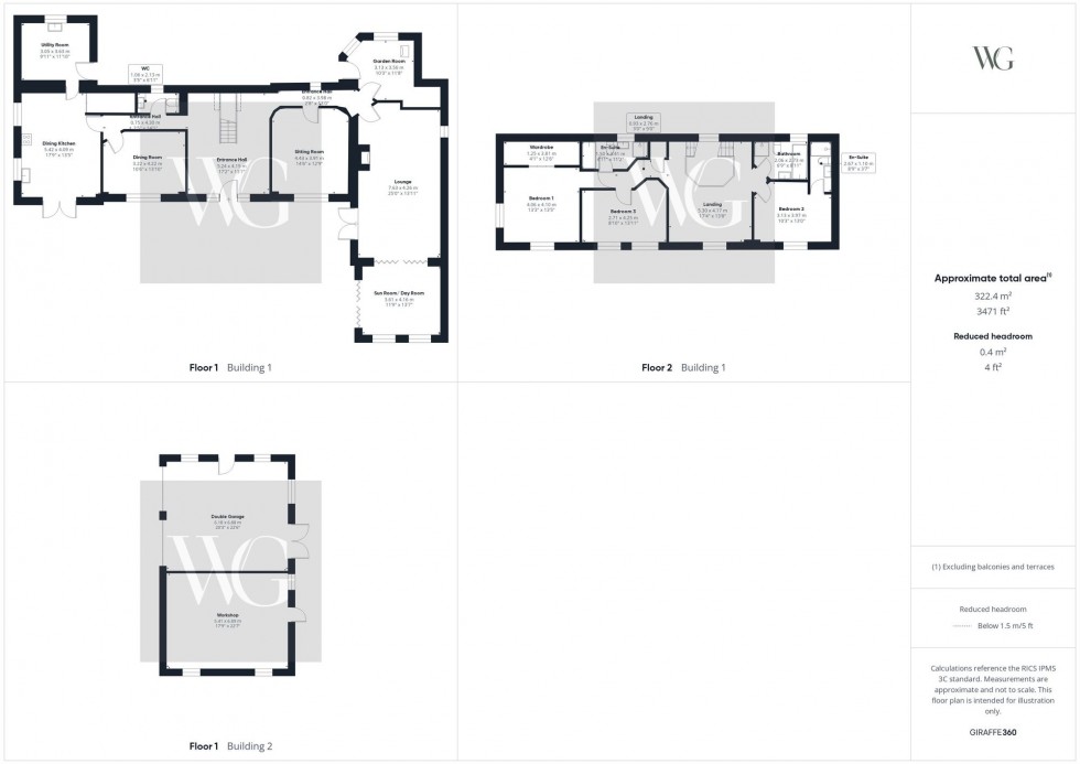
ENTRANCE HALL
A delightful entrance hall offering light and space, with bespoke oak and wrought iron staircase leading off, ceiling spotlighting, oak flooring and underfloor heating.
SITTING ROOM
Overlooking the garden with feature fireplace, elctric fire in situ, ceiling spotlighting, oak flooring, underfloor heating and TV point.
GARDEN ROOM
A great addition to the house with wood burning stove in situ, slate flooring, underfloor heating, window and door to the rear elevation. Overlooking the rear garden.
LOUNGE
With feature brick fireplace, multi-fuel burner in situ, feature beams, window to side elevation, French doors to garden, ceiling spotlighting, TV point and bi-folds to sun/ day room. Underfloor heating.
SUN ROOM/ DAY ROOM
A bright and airy reception room with wood burning stove in situ, oak flooring, bi-fold doors to the garden, full length windows giving sense of space and light towards the rear garden.
DINING ROOM
A super formal dining room, perfect for entertaining, overlooking the garden, ceiling spotlighting, oak flooring and underfloor heating.
KITCHEN DINER
A blend of traditional finish and modern feel, a range of fitted wall, base, drawer and larder units, inset 'belfast' sink, granite work surfaces over, space for dishwasher, microwave, range cooker, integrated fridge/ freezer, tiled splash back, tiled flooring, windows to side elevation and French doors to garden, underfloor heating, ceiling spotlighting and door to utility room.
UTILITY ROOM
A perfect spacious utilty room with wall and base units, inset 'belfast' sink with taps, granite work surface over, tiled splash back, tiled flooring, space for washing machine, tumble dryer and fridge/ freezer, underfloor heating, ceiling spotlighting and door to garden.
LANDING
A simply stunning split level oak staircase with stained glass window to the rear elevation and window to the front elevation, offering light and open views. A vaulted ceiling with beams oozes quality and charm, with bright and airy sitting/ reading area (could be made into a further bedroom if required). There is a cylinder cupboard, oak flooring and underfloor heating. A real statement room!
BEDROOM 1
With dual aspect windows, underfloor heating, laminate flooring, ceiling spotlighting, bespoke fitted wardrobes, opening into a large walk-in wardrobe and door to en-suite.
EN-SUITE
With modern white suite comprising panelled bath, shower cubicle with shower over, pedestal wash hand basin, low level wc, heated towel rail, extractor fan, fully tiled, ceiling spotlighting, underfloor heating and window to rear elevation.
BEDROOM 2
With window to front elevation, laminate flooring, underfloor heating, ceiling spotlighting and door to en-suite.
EN-SUITE
With modern white suite comprising low level wc, pedestal wash hand basin, shower cubicle with shower over, tiled walls and flooring, underfloor heating, ceiling spotlighting and heated towel rail.
BEDROOM 3
With two windows to rear elevation, laminate flooring and underfloor heating and ceiling spotlighting.
BATHROOM
A super modern bathroom with white suite comprising statement bath, pedestal wash hand basin, low level wc and shower cubicle with shower over. Tiled walls and flooring, heated towel rail, underfloor heating and ceiling spotlighting. Window to rear elevation.
SERVICES
Water, electricity and drainage are connected to the property. The property benefits from oil fired central heating. (There is no gas in the village).


















































