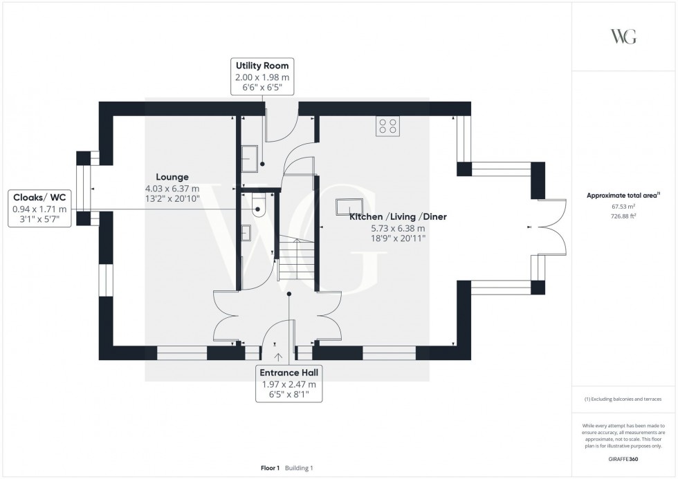
ENTRANCE HALL
With composite door into, laminate flooring, coving and stairs leading off. Doors to.
CLOAKS/ WC
LOUNGE
A beautiful airy room with plenty of light flooding in, with feature fireplace, gas fire in situ, square bay window to side elevation, further side window and window to front elelavtion, coving, two radiators, laminate flooring and TV point.
KITCHEN/ LIVING/ DINER
A fabulous open plan family room. With modern range of wall, base and drawer units, breakfast bar with stainless steel sink and mixer tap, electric oven, gas hob, extractor fan and splash back, work surface over, built-in fridge freezer and dishwasher. Ceiling spotlighting, TV point, laminate flooring, french doors to garden and radiators.
UTILITY ROOM
With under stairs storage, wall mounted gas central heating boiler, rear entrance door, base unit with work surface over, space for washing machine, shelving and stainless steel sink and mixer tap.
LANDING
With window to rear, airing cupboard housing hot water cylinder, loft access, coving and doors to.
BEDROOM 1
With window to front elevation, radiator, range of fitted wardrobes and door to en-suite.
EN-SUITE
With double shower cubicle, thermostatic shower over, glass screen, low level wc, pedestal wash hand basin, heated towel ladder radiator, tiled flooring, window to side elevation, extractor fan and ceiling spotlighting.
BEDROOM 2
With windows to side and rear elevations and radiator.
BEDROOM 3
With window to side and front elevations and radiator.
BEDROOM 4
With storage cupboard, window to front elevation and radiator.
BATHROOM
With white suite comprising, panelled bath with thermostatic shower over, shower screen, pedestal wash hand basin, low level wc, part tiled walls, tiled flooring, window to rear eleavtion, extractor fan and ceiling spotlighting.




































