West Knapton, Malton, YO17 | Offers Over £760,000


The Old School is a four bedroom former school, enjoying a generous plot, which dates back to the early 1800's and is situated in the desirable vil...

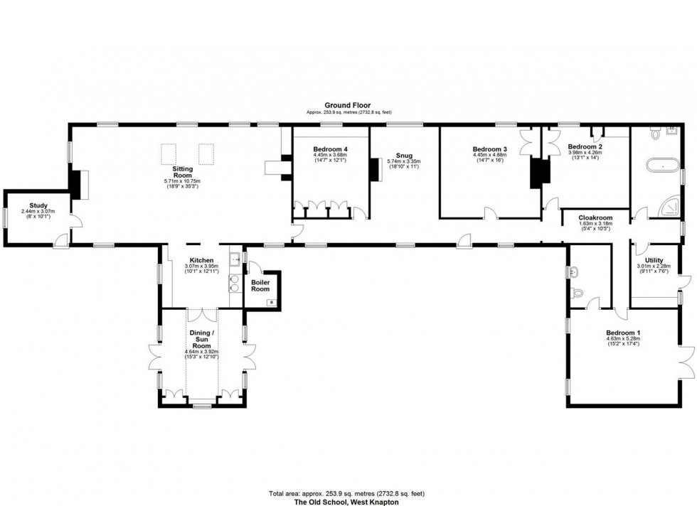
STUDY

Dimensions: 2.44 x 3.07 (8'0" x 10'0"). Door to front aspect, window to side aspect with extensive views, power points, radiator

SITTING ROOM

Dimensions: 5.71 x 10.75 (18'8" x 35'3"). Windows to rear and side aspects, oak flooring, exposed beams, hand crafted fire surrounds with Italian wood burning stove and open fireplace, radiators, power points. Originally the classroom of the former school.

KITCHEN

Dimensions: 3.07 x 3.95 (10'0" x 12'11"). Windows to side aspects, tile flooring, range of tradition wooden base and wall units with granite worktops, Belfast sink with tap, Oil fired Aga, integrated fridge's, extractor, power points.

DINING/SUN ROOM

Dimensions: 4.64 x 3.92 (15'2" x 12'10"). Sunroom with lantern roof built 2004. Double doors to both side aspects, windows to side aspects, wood flooring, bespoke built alcove cabinets, radiator, power points, lantern roof, spot lights.

INNER HALL

Power points, radiators

BEDROOM FOUR

Dimensions: 4.45 x 3.68 (14'7" x 12'0"). Window to rear aspect, bespoke Walnut window seat, skirtings and wardrobes, power points, radiator, loft hatch

SNUG

Dimensions: 5.74 x 3.68 (18'9" x 12'0"). Window to rear aspect, wood flooring, power points, radiator, feature fireplace with open fire.

BEDROOM THREE

Dimensions: 4.45 x 4.88 (14'7" x 16'0"). Window to rear aspect, power points, radiator, built in wardrobes.

BEDROOM TWO

Dimensions: 3.98 x 4.26 (13'0" x 13'11"). Window to rear aspect, built in wardrobes, power points, radiator.

CLOAKROOM

Dimensions: 1.63 x 3.18 (5'4" x 10'5"). Inner hall space with coat and shoe storage. Views of the stain glass window

BATHROOM

Window to side aspect with exceptional views of the garden, roll top bath strategically placed for the perfect view across the garden, wash hand basin with pedestal, low flush WC, corner shower, exposed beams, radiator.

UTILITY

Dimensions: 3.01 x 2.28 (9'10" x 7'5"). Door and window to side aspect, space for washing machine, space for tumble dryer, space for freezer, worktop with tiled splashback, power points, radiator. (Extension added in 2008)

BEDROOM ONE

Dimensions: 4.63 x 5.28 (15'2" x 17'3"). Double doors onto garden, windows to side aspect, power points, spot lights, radiator. (Extension added 2008)

EN-SUITE

Wash hand basin, low flush WC, tiled flooring (Extension added 2008)

GARDEN

Planted 35 years ago. With a variety of interesting trees and shrubs. 36 fruit and nut trees, including, Apricots, 2 peaches, 8 apples, 7 pears 3 morello cherry 8 eating apples one large cooking apple, 3 plums 3 cob nuts, and a large walnut providing lots of nuts if you can beat the squirrel. A great many flowering shrubs which run through, and divide the main garden into a series of rooms which include 4 large philadelphus, morning and evening scented, lilacs, rock roses, dog woods, brubrus, forsythia, spiraea (bridal bouquet) , mahonia, potentilla, viburnum tinus, and lots of wisteria, and clematis. They even have holly for Christmas. Over 60 trees in the mini arboretum some rare and interesting like snake skin maple, or red flowering prunus, and others more common such as wild cherry silver birch, oak hawthorn, willow, maple and 7 large poplars. A woodland path that runs along the back of the garden, which occasionally has field mushrooms and puff balls. The main lawn is surrounded by an established wild flower garden which self seeds, with large swathes of field campion, ox eye daisies fox gloves, stocks, poppies lupins etc mixed with the odd signature plant such as evening primrose, bergamot or hollyhocks. In late summer the owners have lots of verbena in large beds which always look amazing. The veg garden has early and late raspberries, strawberries, white current, and gooseberries, rosemary, thyme, and chives, with loganberries growing on the school wall. In all a very well stocked garden, carefully designed to be as low maintenance as possible, yet provide a stunning show year in year out.

BOILER ROOM

Boiler

SCHOOL YARD

The school yard forms a walled garden, with its own micro climate, ideal for growing Mediterranean herbs, and flowers, Lavender, Giant Hollyhock, fox gloves, aquilegia, grow freely in the joints between the stone flags, whilst on the walls we have honeysuckle, clematis, and passion flower .

SERVICES

Pitched, 270 mm loft insulation, Boiler and radiators, oil heating, mains drainage.

COUNCIL TAX BAND F

OUTBUILDINGS/GARAGE

Garages, workshops, log store built 2006 by current owners with full thought of transforming to an annex if needed with insulation, Along the workshop wall are 2 white grape vines, 1 red grape vine. Has been known to provide 200 bunches of grapes for wine making or to eat fresh.

Floorplan for West Knapton, Malton, YO17 Floorplan for West Knapton, Malton, YO17
EPC Graph for West Knapton, Malton, YO17