Commercial Street, Norton, YO17 | Guide Price £235,000


Beautiful 3-storey period townhouse on Commercial St, Norton. Rich in original features, 2 parking spaces, cast iron fireplaces, traditional kitchen, utility room, 3 double bedrooms. A perfect blend of history and practicality!

LOCATION

Norton is a charming and well-connected town situated on the outskirts of Malton, North Yorkshire. Nestled alongside the picturesque River Derwent, Norton offers a perfect blend of countryside tranquility and modern amenities. The town boasts a strong sense of community, excellent local schools, and a variety of shops, pubs, and restaurants. With Malton, renowned as Yorkshire’s food capital, just a short walk away, residents enjoy access to an array of independent cafes, artisan markets, and fine dining experiences. The area is also well-served by transport links, including a railway station with direct connections to York and beyond, making it an ideal location for commuters. Outdoor enthusiasts will appreciate the nearby Howardian Hills and North York Moors, offering scenic walks and outdoor pursuits. Whether you’re looking for a peaceful retreat or a convenient base to explore North Yorkshire, Norton provides an excellent setting for family life, professionals, and retirees alike.

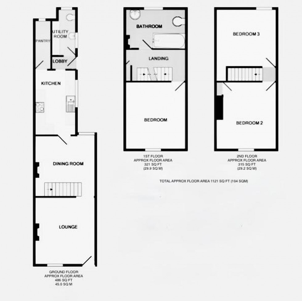
LOUNGE

Dimensions: 4.11 x 3.7 (13'5" x 12'1").

DINING ROOM

Dimensions: 3.84 x 3.66 (12'7" x 12'0").

KITCHEN

Dimensions: 3.58 x 3.1 (11'8" x 10'2").

WALK-IN PANTRY

Dimensions: 2.57 x 1.0 (8'5" x 3'3").

REAR LOBBY

Dimensions: 2.16 x 0.79 (7'1" x 2'7").

UTILITY ROOM

Dimensions: 2.74 x 2.0 (8'11" x 6'6").

BEDROOM ONE

Dimensions: 3.99 x 3.28 (13'1" x 10'9").

BATHROOM

Dimensions: 3.66 x 1.7 (12'0" x 5'6").

BEDROOM TWO

Dimensions: 3.96 x 3.63 (12'11" x 11'10").

PAVED COURTYARD

Dimensions: 11.58 x 5.08 (37'11" x 16'7").

COUNCIL TAX BAND B

EPC RATING D

Floorplan for Commercial Street, Norton, YO17
EPC Graph for Commercial Street, Norton, YO17