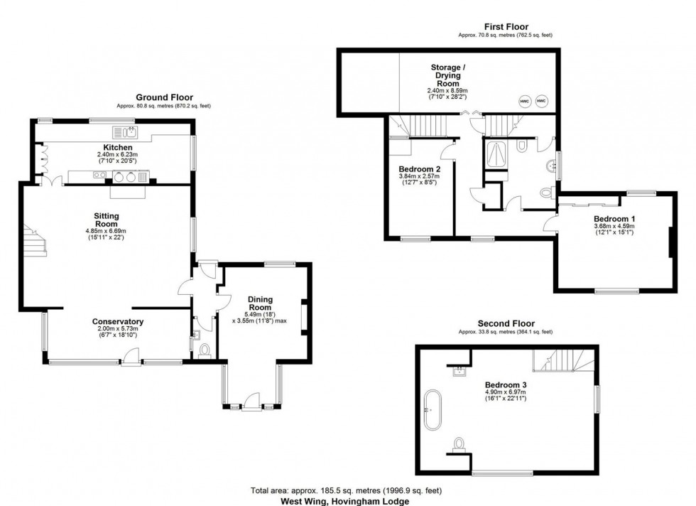
CONSERVATORY
Dimensions: 2.00 x 5.73 (6'6" x 18'9"). Exposed brick wall, wood floor, power points.
SITTING ROOM
Dimensions: 4.85 x 6.69 (15'10" x 21'11"). Window to side aspect, stairs to first floor, feature fireplace with log burner (back boiler), ceiling rose, picture rail and coving.
KITCHEN
Dimensions: 2.40 x 6.23 (7'10" x 20'5"). Window to rear and side aspect, beam ceiling, range of wall, tall and base units, oil fired range providing domestic hot water & central heating, electric oven, sink and tap, space for freestanding fridge, space for freestanding freezer, space for washing machine & dishwasher, power points.
GUEST CLOAKROOM
Low flush WC, wash hand basin, window to side aspect.
DINING ROOM
Dimensions: 5.49 x 3.55 (18'0" x 11'7"). Windows and door to front aspect, window to rear aspect, exposed brick feature fireplace, cornice, radiators, power points.
FIRST FLOOR LANDING
Window to front aspect, radiator, power points, storage cupboard.
BEDROOM ONE
Dimensions: 3.68 x 4.59 (12'0" x 15'0"). Window to front and rear aspect, radiator, power points
BATHROOM
Window to side aspect, wood flooring, low flush WC, enclosed shower, radiator, bidet, extractor fan, airing cupboard.
BEDROOM TWO
Dimensions: 3.84 x 2.57 (12'7" x 8'5"). Window, power points, radiator.
STORAGE/DRYING ROOM
Spacious storage/drying room, two hot water tanks, built in storage cupboards, power points.
SECOND FLOOR
BEDROOM THREE
Dimensions: 4.90 x 6.97 (16'0" x 22'10"). Window to front and side aspect, beams, power points, radiators, roll top bath, sink and WC.
GARDEN
Breathtakingly beautiful views outside, laid lawn, ponds, mature trees, hedge and shrub borders, vegetable patch, outbuildings with power & lighting, side garden, patio area.
PARKING
The driveway is shared with the neighbouring properties, ample parking belonging to property.
COUNCIL TAX BAND E
SERVICES
Oil heating with boiler, back boiler and range, Septic tank, mains electric.
AREA
Scackleton is a picturesque village set in the heart of the Howardian Hills, an Area of Outstanding Natural Beauty, about three miles south west of the popular village of Hovingham. Hovingham has excellent village facilities including a hotel, public house, village shop, bakery, hairdressers, café, children’s playground, bowling green and tennis club. There is also an award winning monthly food market & a range of local primary schools. Malton (about 11 miles) is the nearest market town with a weekly market, shops, supermarket, restaurants, bars and a train station with regular services to York and Leeds. The nearest city is York, about 16 miles, rich in history and has an array of amenities, a mainline train station with good links to London and Scotland. Some services complete the journey to Kings Cross in under two hours. On the outskirts of York are Monks Cross retail shopping centre and the Vangarde shopping park which are about 13 miles from Scackleton. The highly regarded public school Ampleforth College is about eight and a half miles away. The nearby village of Terrington (about three and a half miles), has a prep school and doctors surgery. Secondary schools can be found in Malton (about 12 miles), Easingwold (about ten miles) and Nawton (about 11.5 miles). Please note that all distances and travel times are approximate.


















