West Lutton, Malton, YO17 | Guide Price £850,000


Charming period-property (1855) featuring 'The Forge' - a 4-bed detached house, studio/office, laundry/utility room, and 'The Old Forge' - a 4-bed cottage. Surrounded by fields, perfect family home with large garden, patio, garage, and more.

THE FORGE

HALL

Dimensions: 5.41 x 1.80 (17'8" x 5'10"). Carpeted staircase, dado rail, solid oak floor.

SITTING ROOM

Dimensions: 6.14m x 3.55m (20'1" x 11'7"). Open fire, stone fireplace, coving, picture rails and solid oak floor.

LIVING ROOM

Dimensions: 5.37 x 4.13 (17'7" x 13'6"). Slate fireplace and gas fire, coving, picture rails and engineered oak floor.

WC

Heated towel rail, burlington sink, tiled floor.

DINING ROOM

Dimensions: 2.98 x 6.21 (9'9" x 20'4"). Wood-burning stove, built-in cupboards and tiled floor.

KITCHEN

Dimensions: 4.94 x 2.95 (16'2" x 9'8"). Dual-fuel range cooker, granite worktops, double ceramic belfast sink, integrated fridge, freezer and dishwasher, tiled splashback and upstands, tiled floor.

CLOAKROOM

Dimensions: 1.93 x 2.23 (6'3" x 7'3"). Wood panelled wall with coat hooks, tiled floor, plumbing and extractor for washer and tumble dryer, tiled floor.

CONSERVATORY

Dimensions: 4.23 x 2.73 (13'10" x 8'11"). Bespoke design with coloured glass detail.

LANDING

BEDROOM ONE

Dimensions: 2.73 x 3.58 (8'11" x 11'8"). Window to front aspect, coving, walk-in wardrobe, ensuite shower, toilet and vanity unit, tiled with vinyl flooring. Power sockets and tv point.

BEDROOM TWO

Dimensions: 4.10 x 3.60 (13'5" x 11'9"). Window to the rear, coving, power sockets.

BEDROOM THREE

Dimensions: 3.29 x 4.17 (10'9" x 13'8"). Window to the front aspect, coving, power sockets.

BEDROOM FOUR

Dimensions: 2.82 x 4.19 (9'3" x 13'8"). Window to the side aspect, coving, power sockets.

BATHROOM

Walk-in shower, cupboard with hot water tank and linen cupboard, pull-out storage cupboard, roll top bath, wood panelling and tiled floor.

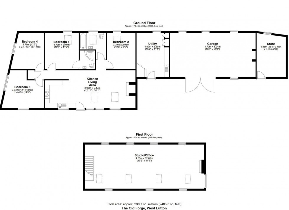
STUDIO/OFFICE

Dimensions: 4.63 x 12.65 (15'2" x 41'6"). Engineered oak floor, original beams, electric heaters, velux and upvc windows.

LAUNDRY ROOM/UTILITY

Dimensions: 4.62 x 3.39 (15'1" x 11'1"). Plumbing for washer and dryer, ample storage, linen cupboards, limestone effect ceramic tiles.

THE OLD FORGE

THE OLD FORGE KITCHEN LIVING AREA

Dimensions: 3.93 x 9.47 (12'10" x 31'0"). Open-plan kitchen/dining, electric range cooker, wood-burning stove, exposed brick fireplace.

THE OLD FORGE BEDROOM ONE

Dimensions: 3.79 x 3.40 (12'5" x 11'1"). Double ensuite with shower, electric heated towel rail, power socket, tv point and velux window.

THE OLD FORGE BEDROOM TWO

Dimensions: 3.79 x 2.98 (12'5" x 9'9"). Original beams, tv point, power sockets, velux window.

THE OLD FORGE BEDROOM THREE

Dimensions: 3.93 x 4.40 (12'10" x 14'5"). Original beams, tv point, power sockets.

THE OLD FORGE BEDROOM FOUR

Dimensions: 3.79 x 3.47 (12'5" x 11'4"). Original beams, tv point, power sockets.

THE OLD FORGE BATHROOM

Tiled shower bath, velux window, electric heated towel rail.

THE OLD FORGE GARAGE

Dimensions: 4.70 x 8.94 (15'5" x 29'3"). Concrete floor, power, sockets, lighting.

THE OLD FORGE STORE

Dimensions: 4.85 x 3.05 (15'10" x 10'0").

GARDEN

Limestone patio, water feature, lawn, summer house, green house and garden shed.

DRIVEWAY

Ample parking for multiple vehicles.

LOCATION

West Lutton lies in the beautiful rolling countryside of the Wolds approximately 12 miles from Malton and some 10 miles from Driffield. There are good local facilities available in both towns and in Malton there is a railway station with regular connections to the East Coast and the City of York. In the village itself there is a primary school and pub. Situated in The Great Wolds Valley alongside The Gypsy Race, a stream which runs through the village and is fed by a natural spring, and overlooking an ’Area of Outstanding Natural Beauty.’

Floorplan for West Lutton, Malton, YO17 Floorplan for West Lutton, Malton, YO17
EPC Graph for West Lutton, Malton, YO17