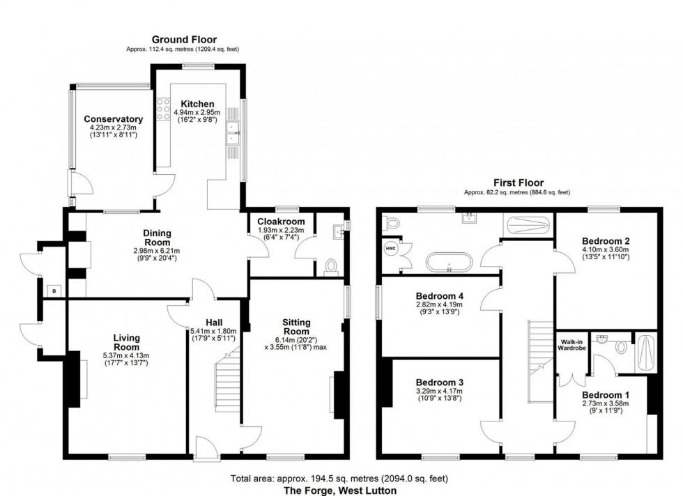
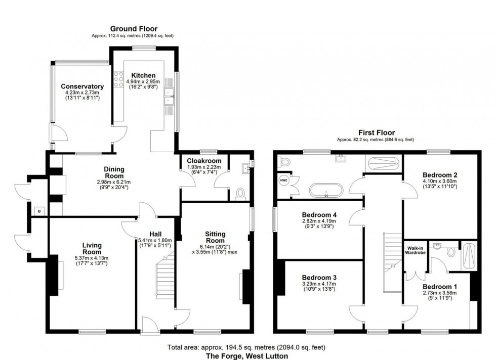
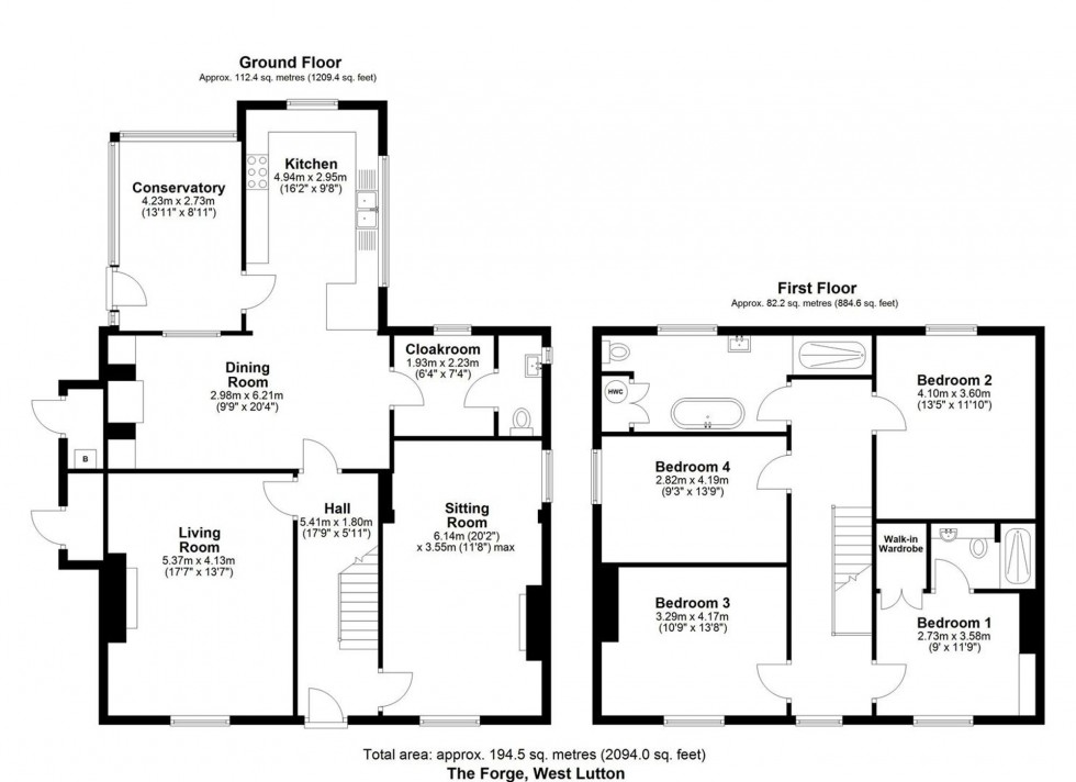
THE FORGE
HALL
Dimensions: 5.41 x 1.80 (17'8" x 5'10"). Carpeted staircase, dado rail, solid oak floor.
SITTING ROOM
Dimensions: 6.14m x 3.55m (20'1" x 11'7"). Open fire, stone fireplace, coving, picture rails and solid oak floor.
LIVING ROOM
Dimensions: 5.37 x 4.13 (17'7" x 13'6"). Slate fireplace and gas fire, coving, picture rails and engineered oak floor.
WC
Heated towel rail, burlington sink, tiled floor.
DINING ROOM
Dimensions: 2.98 x 6.21 (9'9" x 20'4"). Wood-burning stove, built-in cupboards and tiled floor.
KITCHEN
Dimensions: 4.94 x 2.95 (16'2" x 9'8"). Dual-fuel range cooker, granite worktops, double ceramic belfast sink, integrated fridge, freezer and dishwasher, tiled splashback and upstands, tiled floor.
CLOAKROOM
Dimensions: 1.93 x 2.23 (6'3" x 7'3"). Wood panelled wall with coat hooks, tiled floor, plumbing and extractor for washer and tumble dryer, tiled floor.
CONSERVATORY
Dimensions: 4.23 x 2.73 (13'10" x 8'11"). Bespoke design with coloured glass detail.
LANDING
BEDROOM ONE
Dimensions: 2.73 x 3.58 (8'11" x 11'8"). Window to front aspect, coving, walk-in wardrobe, ensuite shower, toilet and vanity unit, tiled with vinyl flooring. Power sockets and tv point.
BEDROOM TWO
Dimensions: 4.10 x 3.60 (13'5" x 11'9"). Window to the rear, coving, power sockets.
BEDROOM THREE
Dimensions: 3.29 x 4.17 (10'9" x 13'8"). Window to the front aspect, coving, power sockets.
BEDROOM FOUR
Dimensions: 2.82 x 4.19 (9'3" x 13'8"). Window to the side aspect, coving, power sockets.
BATHROOM
Walk-in shower, cupboard with hot water tank and linen cupboard, pull-out storage cupboard, roll top bath, wood panelling and tiled floor.
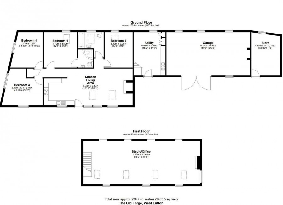
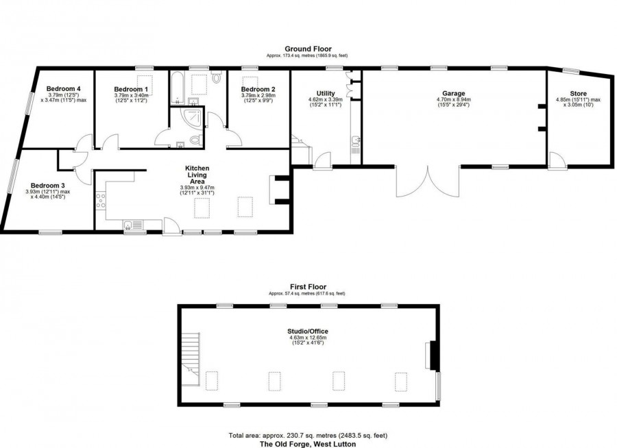
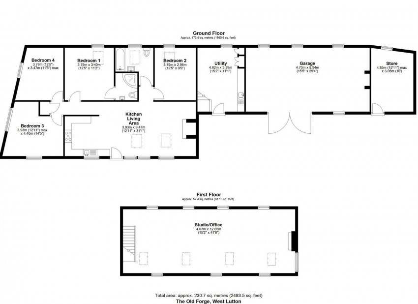
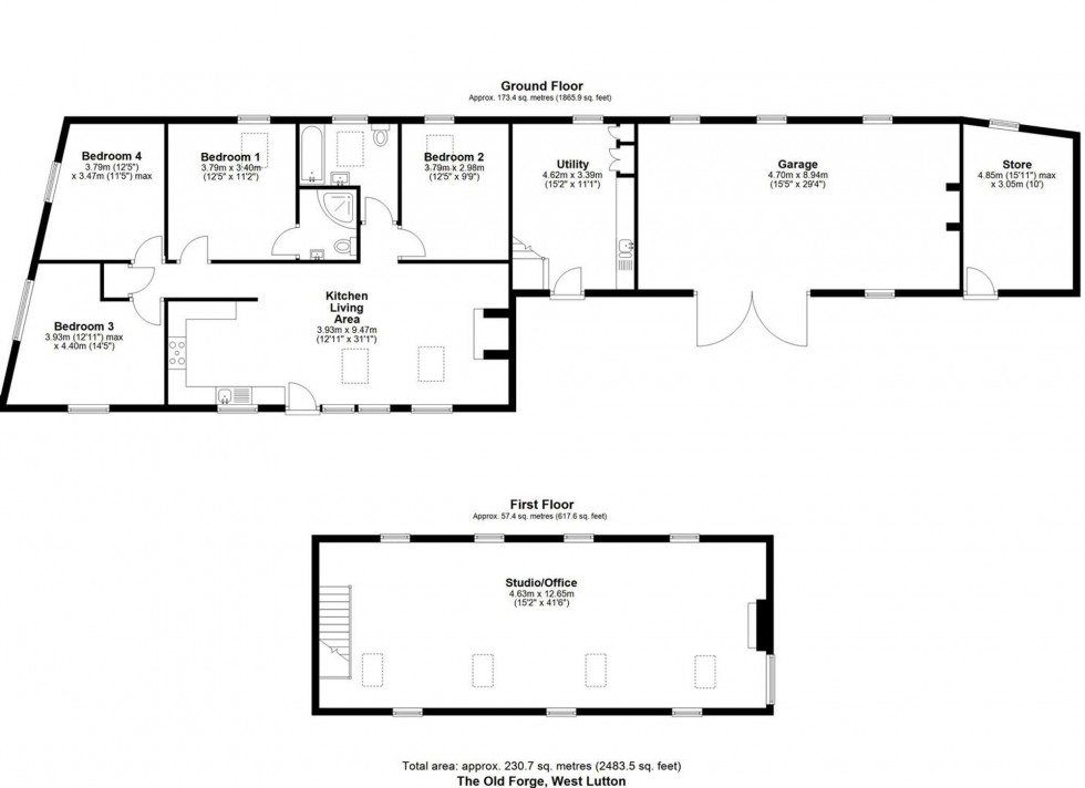
STUDIO/OFFICE
Dimensions: 4.63 x 12.65 (15'2" x 41'6"). Engineered oak floor, original beams, electric heaters, velux and upvc windows.
LAUNDRY ROOM/UTILITY
Dimensions: 4.62 x 3.39 (15'1" x 11'1"). Plumbing for washer and dryer, ample storage, linen cupboards, limestone effect ceramic tiles.
THE OLD FORGE
THE OLD FORGE KITCHEN LIVING AREA
Dimensions: 3.93 x 9.47 (12'10" x 31'0"). Open-plan kitchen/dining, electric range cooker, wood-burning stove, exposed brick fireplace.
THE OLD FORGE BEDROOM ONE
Dimensions: 3.79 x 3.40 (12'5" x 11'1"). Double ensuite with shower, electric heated towel rail, power socket, tv point and velux window.
THE OLD FORGE BEDROOM TWO
Dimensions: 3.79 x 2.98 (12'5" x 9'9"). Original beams, tv point, power sockets, velux window.
THE OLD FORGE BEDROOM THREE
Dimensions: 3.93 x 4.40 (12'10" x 14'5"). Original beams, tv point, power sockets.
THE OLD FORGE BEDROOM FOUR
Dimensions: 3.79 x 3.47 (12'5" x 11'4"). Original beams, tv point, power sockets.
THE OLD FORGE BATHROOM
Tiled shower bath, velux window, electric heated towel rail.
THE OLD FORGE GARAGE
Dimensions: 4.70 x 8.94 (15'5" x 29'3"). Concrete floor, power, sockets, lighting.
THE OLD FORGE STORE
Dimensions: 4.85 x 3.05 (15'10" x 10'0").
GARDEN
Limestone patio, water feature, lawn, summer house, green house and garden shed.
DRIVEWAY
Ample parking for multiple vehicles.
LOCATION
West Lutton lies in the beautiful rolling countryside of the Wolds approximately 12 miles from Malton and some 10 miles from Driffield. There are good local facilities available in both towns and in Malton there is a railway station with regular connections to the East Coast and the City of York. In the village itself there is a primary school and pub. Situated in The Great Wolds Valley alongside The Gypsy Race, a stream which runs through the village and is fed by a natural spring, and overlooking an ’Area of Outstanding Natural Beauty.’









































































