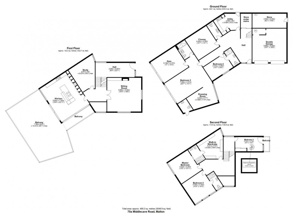
GROUND FLOOR
Underfloor heating throughout.
RECEPTION HALL
Floor to ceiling, underfloor heating.
CINEMA ROOM
Dimensions: 4.44 x 4.3 (14'6" x 14'1"). 8 seats, projector screen, sound system.
GROUND FLOOR BEDROOM SUITE
Dimensions: 7.2 x 4.31 (23'7" x 14'1"). Sliding doors onto the garden, freestanding bath on tiled floor.
GROUND FLOOR BEDROOM EN SUITE
Wall hung vanity with ceramic gold sink, electric mirror, towel rail, underfloor heating, shower.
GROUND FLOOR DRESSING ROOM
Dimensions: 5.35 x 3.58 (17'6" x 11'8").
GYM OFF GROUND FLOOR SUITE
Dimensions: 5.18 x 4.37 (16'11" x 14'4").
UTILITY ROOM
Dimensions: 4.88 x 3.09 (16'0" x 10'1"). Plumbed for washing machine, dryer, sink.
GUEST CLOAKROOM
Wall hung vanity unit with gold sink, wall hung WC.
GROUND FLOOR BEDROOM FOUR
Dimensions: 4.44 x 2.85 (14'6" x 9'4").
EN-SUITE FOUR
Wall hung vanity sink, towel rail, shower, wc.
FIRST FLOOR HALL
Dimensions: 2.55 x 6.87 (8'4" x 22'6"). Side entrance hall with large glazed door. Stairs up to;
SITTING ROOM
Dimensions: 5.88 x 5.94 (19'3" x 19'5"). Floor to ceiling glazing onto front and side aspects, media wall with gas fire inset, double doors onto landing, glazed window onto top landing.
STUDY
Dimensions: 4.87 x 5.57 (15'11" x 18'3").
KITCHEN
Dimensions: 5.94 x 7 (19'5" x 22'11"). German kitchen, liebherr fridge, freezer, full size wine cooler, quooker hot water tap, counters lit, induction hob,
WRAP ROUND BALCONY
Dimensions: 7.38 x 12.21 (24'2" x 40'0").
SECOND FLOOR
MASTER BEDROOM
Dimensions: 4.02 x 4.25 (13'2" x 13'11"). Floor to ceiling windows, sliding door through to ensuite.
MASTER EN-SUITE
Fully tiled, towel rail, wall hung vanity unit, mirrored vanity cupboard, shower, underfloor heating. Leads to dressing room.
WALK IN WARDROBE/DRESSING ROOM
Dimensions: 5.3 x 5.03 (17'4" x 16'6"). Bespoke handmade open wardrobes, sensor lights, cabinets lit.
BEDROOM FIVE
Dimensions: 2.53 x 4.7 (8'3" x 15'5"). With spiral staircase to mezzanine.
MEZZANINE
Dimensions: 2.29 x 2.53 (7'6" x 8'3"). TV power points.
DOUBLE GARAGE
Dimensions: 5.96 x 6.00 (19'6" x 19'8"). Double garage doors, electric, water cylinder, water tap.
OUTSIDE
Driveway parking to the front, double garaging, two entrances, landscaped gardens, terraces, swim spa, outside garden toilet, boiler room, garden lighting, security lighting, outside taps, electric points.
SWIM SPA WITH HOT TUB
Installed in 2021, hot tub seats 8. Swim spa with jets.
GARDEN ROOM WITH BAR
Located at the bottom of garden, fridges, wine fridge, kitchen sink with hot & cold water, electric, bi folding doors.
SERVICES
Mains gas, water and electricity.
TENURE
Freehold.
COUNCIL TAX BAND G












































