Middlecave Road, Malton, YO17 | Guide Price £1,350,000


A visionary 5-bed detached home in Malton, designed by award-winning architects Bramhall Blenkharn. Features include a double-height atrium, luxurious master suites, open-plan living, and landscaped gardens with a swim spa and outdoor bar.

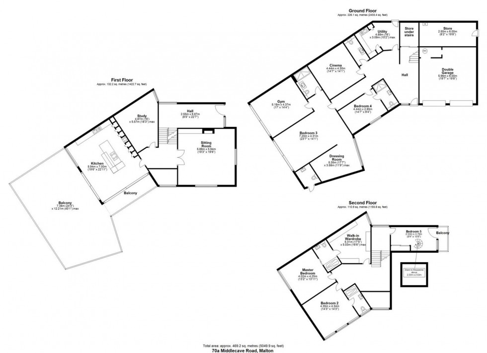
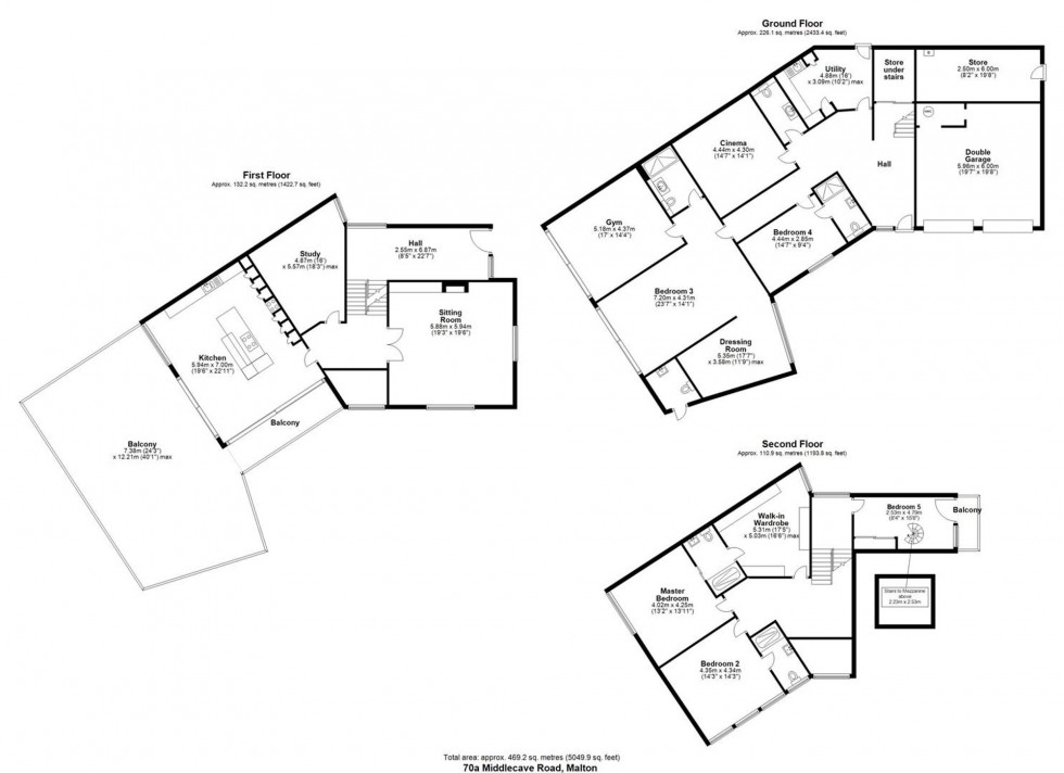
GROUND FLOOR

Underfloor heating throughout.

RECEPTION HALL

Floor to ceiling, underfloor heating.

CINEMA ROOM

Dimensions: 4.44 x 4.3 (14'6" x 14'1"). 8 seats, projector screen, sound system.

GROUND FLOOR BEDROOM SUITE

Dimensions: 7.2 x 4.31 (23'7" x 14'1"). Sliding doors onto the garden, freestanding bath on tiled floor.

GROUND FLOOR BEDROOM EN SUITE

Wall hung vanity with ceramic gold sink, electric mirror, towel rail, underfloor heating, shower.

GROUND FLOOR DRESSING ROOM

Dimensions: 5.35 x 3.58 (17'6" x 11'8").

GYM OFF GROUND FLOOR SUITE

Dimensions: 5.18 x 4.37 (16'11" x 14'4").

UTILITY ROOM

Dimensions: 4.88 x 3.09 (16'0" x 10'1"). Plumbed for washing machine, dryer, sink.

GUEST CLOAKROOM

Wall hung vanity unit with gold sink, wall hung WC.

GROUND FLOOR BEDROOM FOUR

Dimensions: 4.44 x 2.85 (14'6" x 9'4").

EN-SUITE FOUR

Wall hung vanity sink, towel rail, shower, wc.

FIRST FLOOR HALL

Dimensions: 2.55 x 6.87 (8'4" x 22'6"). Side entrance hall with large glazed door. Stairs up to;

SITTING ROOM

Dimensions: 5.88 x 5.94 (19'3" x 19'5"). Floor to ceiling glazing onto front and side aspects, media wall with gas fire inset, double doors onto landing, glazed window onto top landing.

STUDY

Dimensions: 4.87 x 5.57 (15'11" x 18'3").

KITCHEN

Dimensions: 5.94 x 7 (19'5" x 22'11"). German kitchen, liebherr fridge, freezer, full size wine cooler, quooker hot water tap, counters lit, induction hob,

WRAP ROUND BALCONY

Dimensions: 7.38 x 12.21 (24'2" x 40'0").

SECOND FLOOR

MASTER BEDROOM

Dimensions: 4.02 x 4.25 (13'2" x 13'11"). Floor to ceiling windows, sliding door through to ensuite.

MASTER EN-SUITE

Fully tiled, towel rail, wall hung vanity unit, mirrored vanity cupboard, shower, underfloor heating. Leads to dressing room.

WALK IN WARDROBE/DRESSING ROOM

Dimensions: 5.3 x 5.03 (17'4" x 16'6"). Bespoke handmade open wardrobes, sensor lights, cabinets lit.

BEDROOM FIVE

Dimensions: 2.53 x 4.7 (8'3" x 15'5"). With spiral staircase to mezzanine.

MEZZANINE

Dimensions: 2.29 x 2.53 (7'6" x 8'3"). TV power points.

DOUBLE GARAGE

Dimensions: 5.96 x 6.00 (19'6" x 19'8"). Double garage doors, electric, water cylinder, water tap.

OUTSIDE

Driveway parking to the front, double garaging, two entrances, landscaped gardens, terraces, swim spa, outside garden toilet, boiler room, garden lighting, security lighting, outside taps, electric points.

SWIM SPA WITH HOT TUB

Installed in 2021, hot tub seats 8. Swim spa with jets.

GARDEN ROOM WITH BAR

Located at the bottom of garden, fridges, wine fridge, kitchen sink with hot & cold water, electric, bi folding doors.

SERVICES

Mains gas, water and electricity.

TENURE

Freehold.

COUNCIL TAX BAND G

Floorplan for Middlecave Road, Malton, YO17 Floorplan for Middlecave Road, Malton, YO17
EPC Graph for Middlecave Road, Malton, YO17