St. Nicholas Street, Norton, YO17 | Guide Price £299,000


15 St Nicholas Street is a spacious three storey townhouse located centrally in Norton offering rooms of generous proportions throughout. This peri...

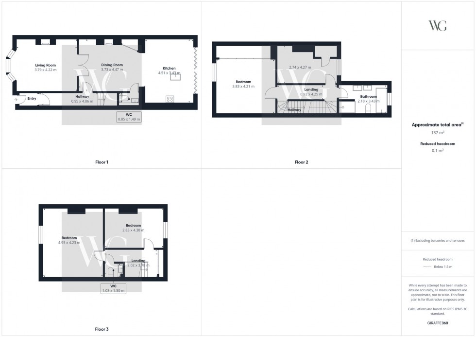
ENTRANCE PORCH

Dimensions: 1.32m x 0.97m (4'3" x 3'2"). UPVC double glazed door into:

Hallway

Entry

Kitchen

Dining Room

Living Room

Wc

Bedroom 1

Landing

Bathroom

Bedroom 2

Bedroom 3

Landing

Wc

ENTRANCE HALL

Dimensions: 3.73m x 4.22m (12'2" x 13'10"). Radiator, coving, power points, solid wood internal door into:

DINING ROOM

Dimensions: 3.73m x 4.22m (12'2" x 13'10" ). UPVC double glazed window to rear aspect, radiator and wooden flooring, feature gas fireplace, power and TV points, large understairs cupboard,. door to rear leads to kitchen and opens into lounge.

SITTING ROOM

Dimensions: 3.78m x 5.03m (12'4" x 16'6"). UPVC double glazed bay window to front, radiator, coving, wooden flooring, coved ceiling, power and TV points, multi fuel log burner.

KITCHEN

Dimensions: 2.34m x 3.51m (7'8" x 11'6"). UPVC window to rear and side aspect, beech effect, base and wall units, stainless steel sink and drainer, wooden flooring. Integral fridge and freezer, space for washing machine, gas hob, electric cooker and extractor fan. Door to rear porch.

PORCH/UTILITY ROOM

Dimensions: 2.18m x 1.22m (7'1" x 4'0"). UPVC double glazed porch to rear of house, plumbed for washing machine and door leading out to rear garden.

FIRST FLOOR LANDING

Staircase to the second floor. Doors to bedrooms one, two and the house bathroom, radiator.

BEDROOM ONE

Dimensions: 4.93m x 4.24m (16'2" x 13'10"). UPVC double glazed window to front aspect, radiator, fitted wardrobe, power and TV point.

BEDROOM TWO

Dimensions: 4.24m x 4.95m (13'10" x 16'2"). UPVC window to rear aspect, radiator, 10ft loft hatch, power points.

BATHROOM

UPVC Opaque window to side, radiator, corner bath, separate shower cubicle, wash hand basin with pedestal and low flush WC.

SECOND FLOOR

BEDROOM THREE

Dimensions: 4.29m x 2.84m (14'0" x 9'3"). UPVC window to rear, airing cupboard, power and TV points.

BEDROOM FOUR

Dimensions: 2.77m x 4.29m (9'1" x 14'0"). UPVC window to front aspect, radiator, power points and TV point.

UPSTAIRS CLOAKROOM

Low flush WC, wash hand basin with pedestal and extractor fan.

FRONT GARDEN

Walled garden, laid with pebbles and shrubs.

REAR GARDEN

Enclosed rear garden with lawn, patio and wooden decking area. outside lighting and tap, garden shed.

Floorplan for St. Nicholas Street, Norton, YO17 Floorplan for St. Nicholas Street, Norton, YO17
EPC Graph for St. Nicholas Street, Norton, YO17