LOCATION
Malton is a charming market town in North Yorkshire, often referred to as "Yorkshire’s Food Capital" due to its thriving food scene, independent eateries, and regular food markets. Nestled on the edge of the Howardian Hills, an Area of Outstanding Natural Beauty, Malton offers a blend of historic character, countryside charm, and modern convenience. The town boasts excellent transport links, with a train station providing easy access to York, Leeds, and beyond, as well as proximity to the A64 for road travel. Residents enjoy a welcoming community, a variety of boutique shops, and access to scenic walking trails along the River Derwent. With a mix of period properties, modern developments, and countryside retreats, Malton is an ideal location for those seeking a blend of rural tranquility and vibrant local culture.
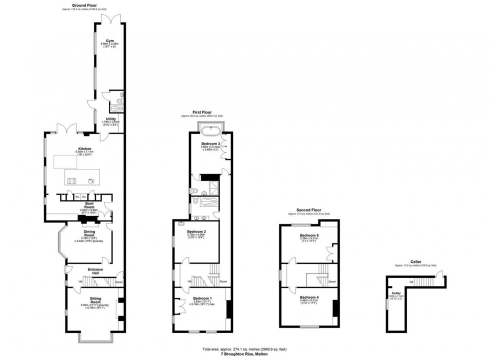
ENTRANCE HALL
SITTING ROOM
Dimensions: 3.93 x 5.16 (12'10" x 16'11").
DINING ROOM
Dimensions: 3.79 x 4.04 (12'5" x 13'3").
BOOT ROOM
Dimensions: 2.02 x 5.93 (6'7" x 19'5").
KITCHEN
Dimensions: 5.5 x 7.11 (18'0" x 23'3").
UTILITY
Dimensions: 1.79 x 2.51 (5'10" x 8'2").
GROUND FLOOR SHOWER ROOM
GYM
BEDROOM ONE
Dimensions: 3.93 x 5.16 (12'10" x 16'11").
FIRST FLOOR LANDING
BEDROOM TWO
Dimensions: 3.79 x 4.06 (12'5" x 13'3").
FAMILY BATHROOM
BEDROOM THREE
Dimensions: 3.66 x 3.65 (12'0" x 11'11").
EN-SUITE
BEDROOM FOUR
Dimensions: 3.46 x 5.21 (11'4" x 17'1").
SECOND FLOOR LANDING
BEDROOM FIVE
Dimensions: 3.35 x 5.21 (10'11" x 17'1").
CELLAR
Dimensions: 4.82 x 1.52 (15'9" x 4'11").
EPC RATING D
COUNCIL TAX BAND E























































