Park Avenue, Driffield, YO25 | £185,000


Three bedroom home with re-fitted kitchen and dining room, large front and rear gardens, in Driffield (a top Yorkshire Wolds market town). EPC rating D.

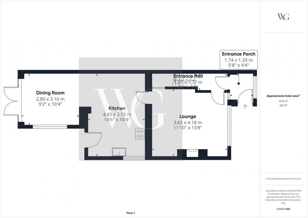
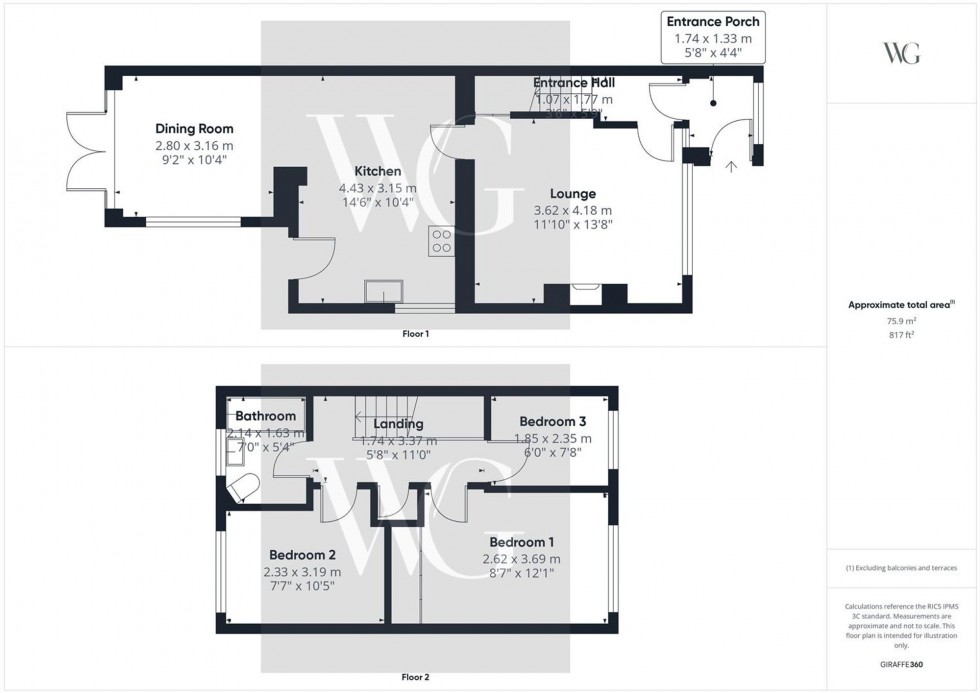
ENTRANCE PORCH

Dimensions: 1.74 x 1.33 (5'8" x 4'4").

ENTRANCE HALL

Dimensions: 1.07 x 1.77 (3'6" x 5'9"). With staircase leading off to the first floor.

LOUNGE

Dimensions: 3.62 x 4.18 (11'10" x 13'8"). With window to front elevation, feature fireplace with multi fuel burning stove in situ, stripped pine flooring and radiator.

KITCHEN

Dimensions: 4.43 x 3.15 (14'6" x 10'4"). A recently re-fitted range of modern wall, base and larder units, work surface over, ceramic sink and mixer tap, integrated electric double oven and hob, integrated washing machine and laminate flooring. Opening into dining room.

DINING ROOM

Dimensions: 2.80 x 3.16 (9'2" x 10'4"). With laminate flooring, window to side elevation and French doors to garden.

LANDING

Dimensions: 1.74 x 3.37 (5'8" x 11'0"). With airing cupboard, stripped doors opening into bedrooms and bathroom.

BEDROOM 1

Dimensions: 2.62 x 3.69 (8'7" x 12'1"). With window to front elevation, range of built-in wardrobes, coving and radiator.

BEDROOM 2

Dimensions: 2.33 x 3.19 (7'7" x 10'5"). With window to rear elevation, coving and radiator.

BEDROOM 3

Dimensions: 1.85 x 2.35 (6'0" x 7'8"). With window to front elevation, coving and radiator.

BATHROOM

Dimensions: 2.14 x 1.63 (7'0" x 5'4"). With traditional style white suite comprising panelled bath with shower over, pedestal wash hand basin and low level wc, heated towel ladder.

GARAGE

There is space for a garage (subject to consents).

GARDEN

There is a garden to front and rear. Shallow walled frontage with lawn and side driveway leading to the rear of the property. Gated access into the rear garden which is mainly laid to lawn with timber garden shed and secure fencing.

PARKING

There is parking on the driveway.

TENURE

We understand that the property is Freehold.

SERVICES

All main services are connected.

ENERGY PERFORMANCE CERTIFICATE

The energy performance rating is D.

COUNCIL TAX BAND

The council tax band is B.

Floorplan for Park Avenue, Driffield, YO25 Floorplan for Park Avenue, Driffield, YO25 Floorplan for Park Avenue, Driffield, YO25
EPC Graph for Park Avenue, Driffield, YO25