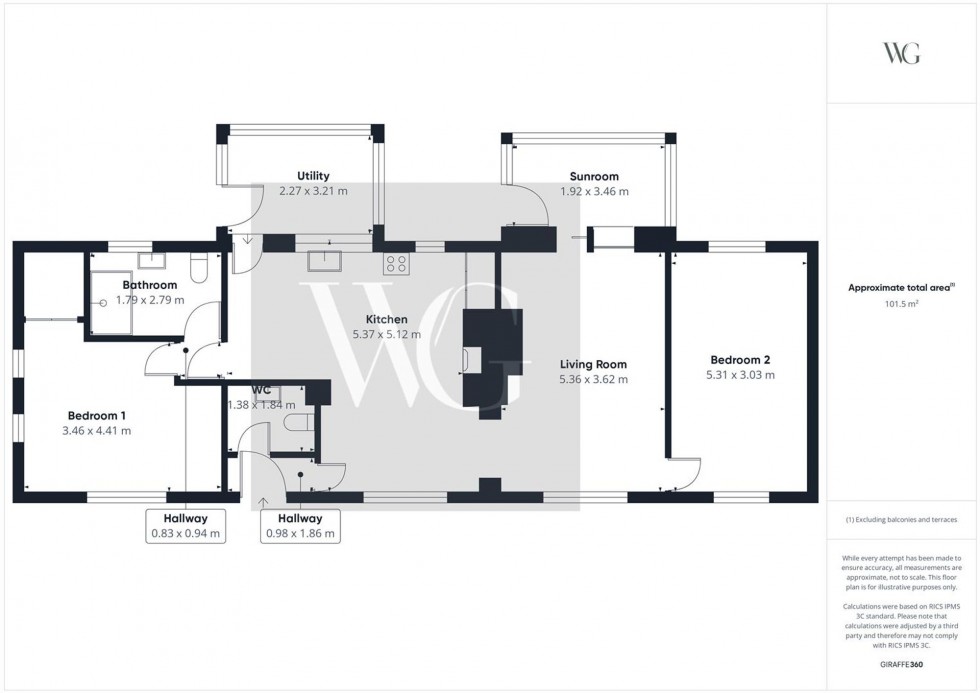
PORCH
Dimensions: 0.98 x 1.86 (3'2" x 6'1"). Oak door to the front aspect, tiled flooring, access to WC and Kitchen / Snug.
GUEST CLOAKROOM
White two piece suite comprising of low flush WC, wash hand basin, extractor fan, radiator and tiled flooring.
KITCHEN/DINER/SNUG
Dimensions: 5.40m x 5.10m (17'8" x 16'8" ). Snug Area UPVC double glazed windows to the front aspect, feature stone fireplace with open fire, radiator and power points. Kitchen Area Window to the rear with countryside view, Door to the rear giving access to the utility area. Range of Oak base units with roll top work surface, stainless steel sink and drainer, space for electric oven, extractor hood, space for under the counter fridge, radiator, power points, storage cupboard housing the airing cupboard and boiler,
UTILITY
Dimensions: 3.20m x 2.20m (10'5" x 7'2" ). Windows to the rear and side aspects with countryside views, UPVC double glazed stable door to the side aspect, base units with roll top work surface, stainless steel sink and drainer, space for washing machine, space for tumble dryer, space for fridge freezer, power points tiled flooring.
INNER HALLWAY
Access to Bedroom One and bathroom.
BEDROOM ONE
Dimensions: 5.40m x 4.40m (17'8" x 14'5" ). UPVC double glazed windows to the front and side aspects, fitted wardrobes, radiator, power points.
BATHROOM
Dimensions: 1.79m x 2.79m (5'10" x 9'1"). Two UPVC double glazed windows to the rear aspect, modern white three piece suite comprising of low flush WC, vanity wash hand basin, walk in double shower, vintage style radiator, tiled flooring.
LOUNGE
Dimensions: 5.40m x 3.60m (17'8" x 11'9" ). UPVC double gazed window to the front aspect, UPVC double glazed Patio doors to the rear giving access to the conservatory. Feature stone brick fireplace with electric coal effect fire, TV point, radiator and power points.
CONSERVATORY
Dimensions: 3.50m x 1.90m (11'5" x 6'2" ). UPVC double glazed windows to the rear and side aspects with countryside views, UPVC double glazed stable door to the side giving access to the back garden, tiled flooring.
BEDROOM TWO
Dimensions: 5.40m x 3.10m (17'8" x 10'2"). UPVC double glazed window to the rear aspect with countryside views, fitted hanging space, radiator and power points.
GARAGE
Dimensions: 4.80m x 3.80m (15'8" x 12'5" ). Larger than the average single garage with up and over door, window and personnel door to the side, power points and light. Ample off street parking for numerous vehicles.
REAR GARDEN
Low maintenance rear garden laid to lawn with patio area and countryside views,
COUNCIL TAX BAND D
EPC BAND E






















