Bracken Road, Driffield, YO25 | Guide Price £207,500


Versatile 3/4 bed semi in sought-after Driffield. Features modern comforts, off-street parking, conservatory, and flexible living space. Cosmetic improvement needed. EPC C.

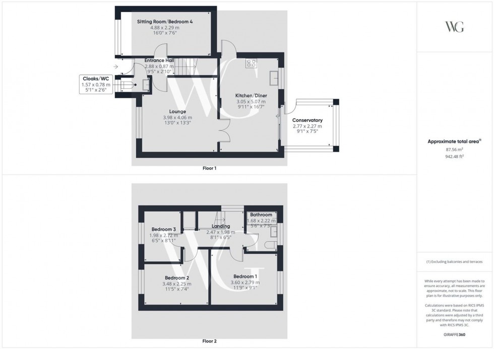
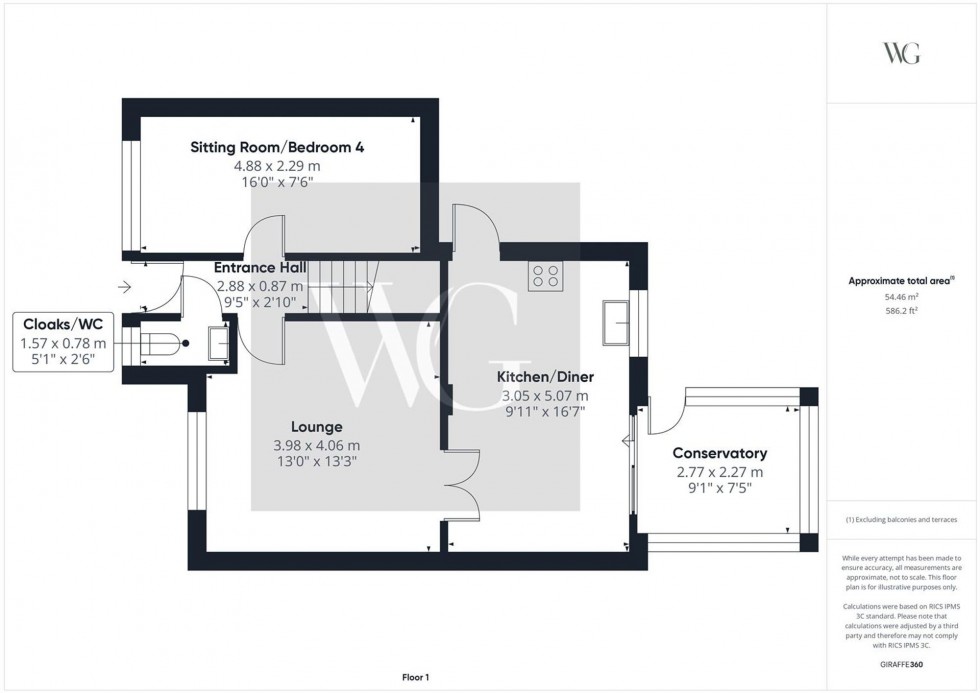
ENTRANCE HALL

Dimensions: 2.88 x 0.87 (9'5" x 2'10"). With UPVC door into, radiator, doors to cloaks/WC and Bedroom 4/reception room, laminate flooring.

CLOAKS/WC

Dimensions: 1.57 x 0.78 (5'1" x 2'6"). Window to front elevation, pedestal wash hand basin, low flush WC, Fully tiled.

LOUNGE

Dimensions: 3.98 x 4.06 (13'0" x 13'3"). Window to front elevation, laminate flooring, radiator, double doors into kitchen.

SITTING ROOM/BEDROOM 4

Dimensions: 4.88 x 2.29 (16'0" x 7'6"). Window to front elevation, radiator and loft hatch, currently used as a bedroom.

KITCHEN/DINER

Dimensions: 3.05 x 5.07 (10'0" x 16'7"). With window to rear elevation, a range of wall and base units with matching laminate worktops, ceramic sink with mixer tap over. Space for cooker, slimline dishwasher and washing machine. Tiled splashbacks. Wall mounted combination boiler. Radiator.

CONSERVATORY

Dimensions: 2.77 x 2.27 (9'1" x 7'5"). Light and spacious, doors into garden, electric points.

LANDING

Dimensions: 2.47 x 1.98 (8'1" x 6'5"). Window to side elevation, loft access and airing cupboard.

BEDROOM 1

Dimensions: 3.60 x 2.79 (11'9" x 9'1"). Window to rear elevation, feature panelled wall, radiator.

BEDROOM 2

Dimensions: 3.48 x 2.25 (11'5" x 7'4"). Window to front elevation, radiator.

BEDROOM 3

Dimensions: 1.98 x 2.72 (6'5" x 8'11"). Window to front elevation, radiator.

BATHROOM

Dimensions: 1.68 x 2.22 (5'6" x 7'3"). Window to rear elevation. White suite comprising low flush WC, wash hand basin, bath with electric shower over, fully tiled.

GARDEN

To the front is blocked paved and gravelled providing parking for 2 vehicles, the rear is mainly laid to lawn with patio seating area, hedged boundaries and outside tap.

PARKING

Block paved driveway to the front providing parking for 2 vehicles

TENURE

We understand that the property is Freehold.

SERVICES

All mains services are connected.

ENERGY PERFORMANCE CERTIFICATE

Energy Performance Certificate - C

COUNCIL TAX BAND

The council tax banding is B.

NOTE

Floorplan for Bracken Road, Driffield, YO25 Floorplan for Bracken Road, Driffield, YO25 Floorplan for Bracken Road, Driffield, YO25
EPC Graph for Bracken Road, Driffield, YO25