Wintringham, Malton, YO17 | Guide Price £499,950


The Old School, a charming converted former village school from 1892, boasts period features, spacious accommodation, beamed ceilings, and stunning gardens with orchard. Ideal for family living or unique home seekers.

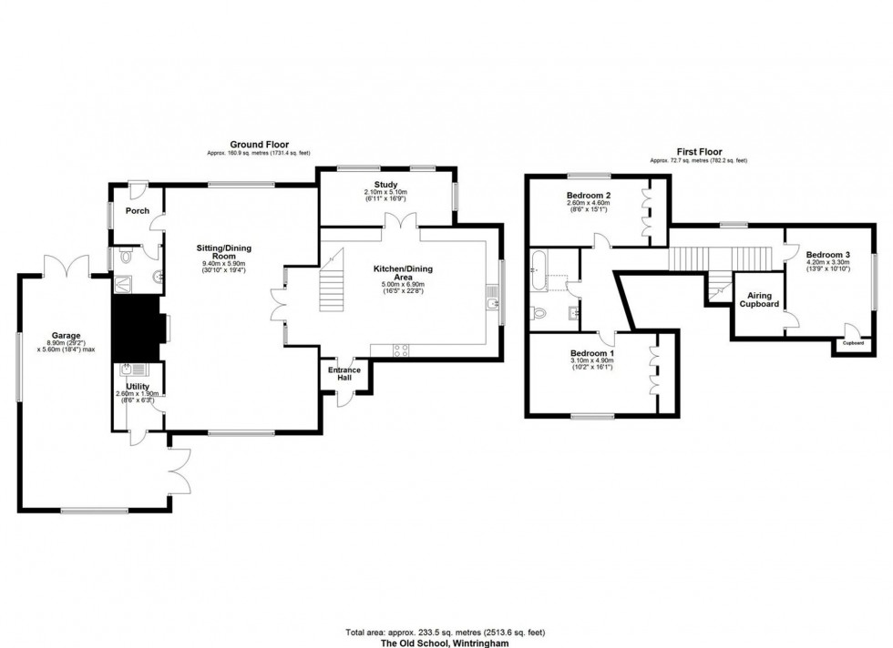
The Old School is a skilfully converted former village school, originally built in 1892 and retaining much of its distinctive character, with tall fluted brick chimneys and a steeply pitched roof. Offering spacious and flexible accommodation over two floors, the property is ideally suited for family living or those seeking a unique home with charm and history. Inside, the layout includes two generous reception rooms, three well-proportioned bedrooms, house bathroom, including a ground floor cloakroom with shower and boot room. The main sitting room features a dining area, while the dining kitchen is equipped with a Aga, adding a warm and traditional touch. A snug or study offers a quiet retreat, complemented by a useful utility room.

Throughout the property, period features such as beamed ceilings, stripped floorboards, and stone flagged floors enhance the welcoming and characterful atmosphere. The home is presented to a high standard, warmed by oil-fired central heating and filled with natural light.

Set on the edge of the village, the property enjoys lovely open views across surrounding farmland. The large, beautifully maintained gardens are a true highlight, with extensive lawned areas, mature shrubs, colourful flower beds, and patio seating spots for enjoying the tranquil setting. A particular delight is the enclosed orchard, home to a variety of apple and pear trees. Practicality is well catered for with ample driveway parking and an attached double garage, making this a rare opportunity to own a unique and beautifully maintained village home in a picturesque rural setting.

Floorplan for Wintringham, Malton, YO17
EPC Graph for Wintringham, Malton, YO17