Town Street, Old Malton, YO17 | Guide Price £345,000


Unique two-bed, two-bath converted chapel in Old Malton. Features designer kitchen, bespoke staircase, stunning windows, eco-friendly finishes, underfloor heating, and striking original details.

The Old Chapel is a truly distinctive two-bedroom, two-bathroom home, newly available in the highly sought-after location of Old Malton with no chain. This exceptional, one-of-a-kind property has been sympathetically converted in recent years to an outstanding standard, with impressive attention to detail throughout.

Great care was taken during the conversion to preserve the building’s character, including the striking original brick archway on the front elevation. Window openings were thoughtfully extended to maximise natural light across both floors, complemented by a beautiful combination of handmade sliding sash and flush casement windows. A dramatic full-height gable window and an oversized bespoke triple roof light further enhance the sense of space and light.

The interior showcases high-quality fixtures and finishes throughout. A bespoke staircase forms a striking focal point, while the designer kitchen is fitted with premium Smeg appliances, an integrated wine cooler, and a handcrafted oak larder. Screwless black nickel switches and carefully chosen feature lighting add a refined, contemporary edge across the home.

Sustainability was also considered in the design, with 100% natural sisal and cotton carpets alongside other environmentally conscious materials used throughout. The ground floor is finished with polished limestone flooring and benefits from underfloor heating, combining comfort with style.

Further distinctive features include statement lighting created from upcycled titanium fairings sourced from Rolls-Royce jet engines, and a remarkable 200kg circular cast iron bathtub, adding to the property’s unique character.

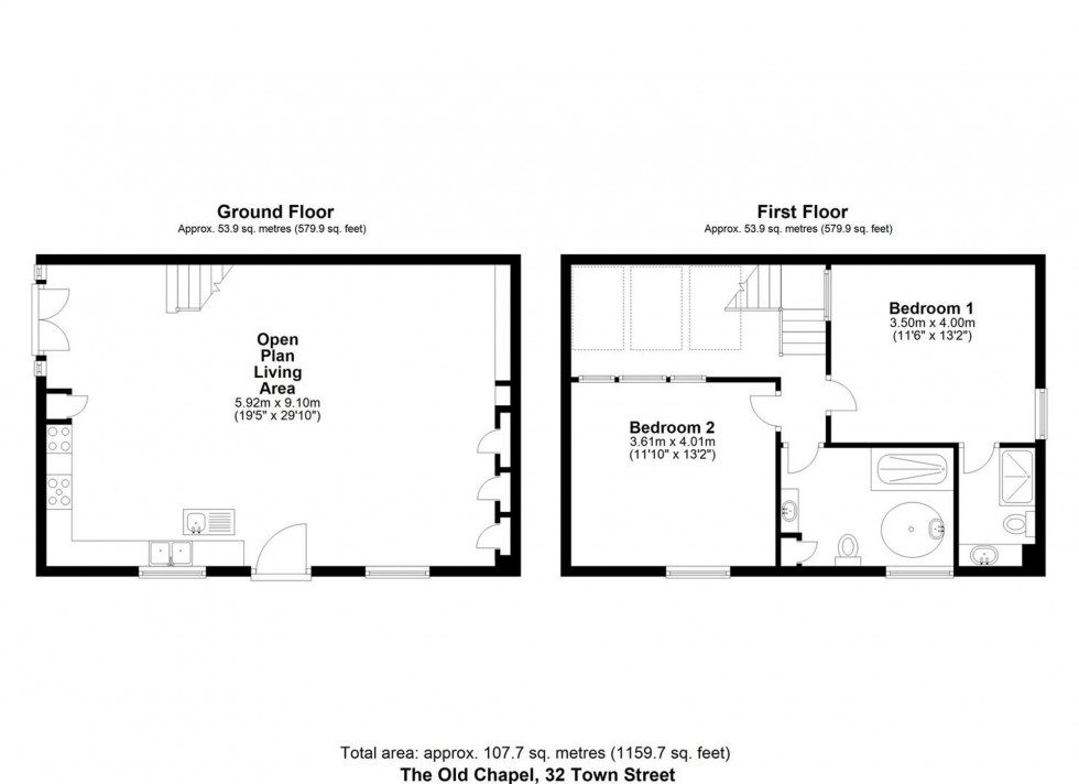
Floorplan for Town Street, Old Malton, YO17
EPC Graph for Town Street, Old Malton, YO17