Low Street, Thornton Le Clay, York | Guide price £865,000


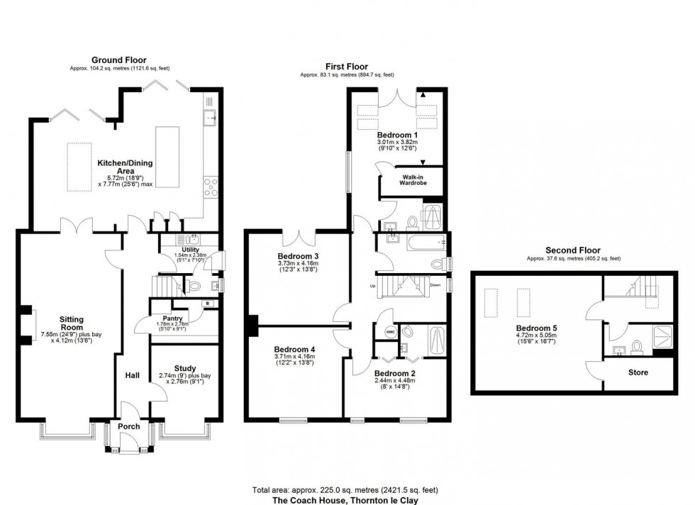
A striking, double bay-fronted five-bedroom home in a peaceful village setting, The Coach House offers generous living space, flexible layouts, and exceptional outdoor areas, including a beautifully landscaped garden with manicured trees and a rare, expansive paddock. The property is approached via double drive gates, adding to its sense of privacy and prestige.
At the heart of the home is a light-filled, dual-aspect kitchen and dining area, featuring timber worktops, shaker-style cabinets, a range cooker, integrated appliances, a wine fridge, wood flooring, and a central island. Bi-fold doors open to the garden, while a roof lantern and skylight flood the space with natural light. Glazed double doors connect the dining area to the lounge, creating a seamless flow for entertaining.
The spacious lounge, also with parquet flooring, features a log burner and enjoys dual-aspect views to the garden. A study/snug, guest cloakroom, and utility room add practicality, while oak internal doors throughout the home and beautifully decorated interiors enhance its elegance.
Upstairs, the first floor hosts four bedrooms, including a luxurious principal suite with a walk-in wardrobe, en-suite with rainfall shower and vanity unit, and a Juliet balcony overlooking the garden. A second en-suite bedroom, also with a rainfall shower and vanity unit, and two further bedrooms (one with a Juliet balcony) share a stylish family bathroom. The second floor features a fifth bedroom with its own private bathroom, ideal for guests.
The large rear garden, with its mature weeping willow and manicured trees, opens out to a vast paddock, perfect for outdoor pursuits, keeping animals, or simply enjoying the open countryside. Additional eco-friendly features include solar panels.
Combining space, flexibility, luxury finishes, and enviable outdoor living, The Coach House offers a rare opportunity to own a substantial family home in one of North Yorkshire’s most picturesque and well-connected village.

LOCATION

Tucked away in the peaceful North Yorkshire countryside, Thornton-le-Clay is a picturesque village full of rural charm and community spirit. Surrounded by rolling farmland and quiet lanes, it offers the perfect setting for those seeking a traditional village lifestyle.

The village itself is home to a well-regarded primary school, with day-to-day amenities available in nearby villages such as Foston and Strensall. Just a short drive away, Malton, Yorkshire’s Food Capital, provides an abundance of independent shops, award-winning markets, cafés, and restaurants, as well as excellent schooling, rail connections, and easy access to the A64 for York, Leeds and the coast.

For those who love the outdoors, the Howardian Hills Area of Outstanding Natural Beauty is close by, offering endless opportunities for walking, cycling and exploring.

With its charming setting, welcoming community, and convenient links to Malton and York, Thornton-le-Clay is a hidden gem for families, professionals, and anyone seeking a peaceful village home.

SITTING ROOM (7.55 x 4.12)

KITCHEN/DINING ROOM (5.72 x 7.77)

SNUG/STUDY (2.74 x 2.76)

WALK-IN PANTRY (1.78 x 2.76)

UTILITY (1.54 x 2.38)

GUEST CLOAKROOM

MASTER BEDROOM (3.01 x 3.52)

WALK IN WARDROBE

MAIN BEDROOM EN-SUITE

BEDROOM TWO (2.44 x 4.48)

ENSUITE TWO

BEDROOM THREE (3.73 x 4.16)

BEDROOM FOUR (3.71 x 4.16)

BEDROOM FIVE (4.72 x 5.05)

GUEST BATHROOM

EXTERIOR

EPC RATING C

COUNCIL TAX BAND F

Floorplan for Low Street, Thornton Le Clay, York
EPC Graph for Low Street, Thornton Le Clay, York