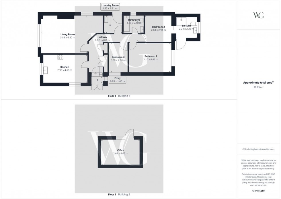
The property briefly comprises entrance hall, dual aspect living room, fitted kitchen, two bedrooms, one with en-suite bathroom, house bathroom, office, laundry room, and separate garden room/second office.
Located just a short walk from Pickering’s vibrant town centre, this home offers easy access to an array of shops, restaurants, and schools. Excellent transport links connect you to nearby towns and cities, while the stunning North York Moors are right on your doorstep—ideal for nature lovers and outdoor enthusiasts.
KITCHEN (2.9 x 4.6)
Bespoke kitchen, integrated fridge freezer, dishwasher, oven, microwave. Butlers pantry. Easy access fuse box. Lighting in and under cupboards, ceiling spotlights, two windows.
LIVING ROOM (3.89 x 6.3)
Two windows, one to the side and one to the front, ceiling spotlights, wall lights, gas fire, two blackout electric blinds, telephone and tv point.
BEDROOM 1 (3.10 x 4.43)
Window to rear aspect, electric blackout blind, radiator, fitted wardrobes and fitted shelving, TV point.
BEDROOM 2 (2.84 x 2.94)
En-suite bathroom with wet room, fitted wardrobes, shelving, power points.
EN SUITE (2.24 x 2.25)
Wet room, with integrated toilet, sink and vanity unit, heated towel rail and window to rear aspect.
BATHROOM (1.88 x 2.18)
Bath, toilet, sink with vanity unit, lighted steam proof mirror, fan, radiator and window.
LAUNDRY (1.85 x 1.81)
Toilet, sink, boiler and space for washing machine.
BEDROOM 3 (3.08 x 2)
Radiator, window to garden, power points.
OFFICE (2.69 x 4.05)
Separate building, power points, light, telephone point, ideal home office/work/gym space.
HALLWAY (0.82 x 4.88)
DRIVEWAY
Large driveway to the front and side of the property, external electric awning.
GARDEN
Paved garden with small lawn area.
