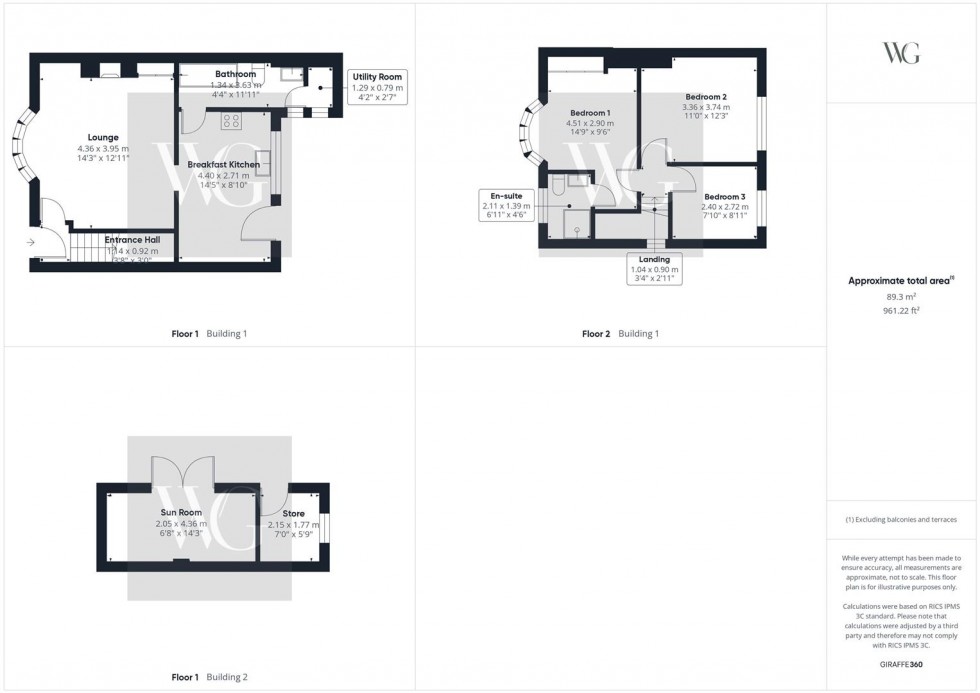
The property briefly comprises entrance hall, lounge, breakfast kitchen, bathroom, utility, landing, three bedroom, one with en-suite. Generous garden, brick built garden room with garden store. The property benefits from gas central heating and Upvc double glazing.
Named as one of The Sunday Times’ “Best Places to Live in the North of England”, Driffield is also known as The Heart of the Yorkshire Wolds. Nestled between the low undulating hills of Yorkshire's East Riding, Driffield is a friendly and welcoming market town offering a superb range of traditional shops, a buzzing weekly market, as well as excellent transport links and an extensive range of amenities for its residents and visitors to enjoy.
EPC rating D
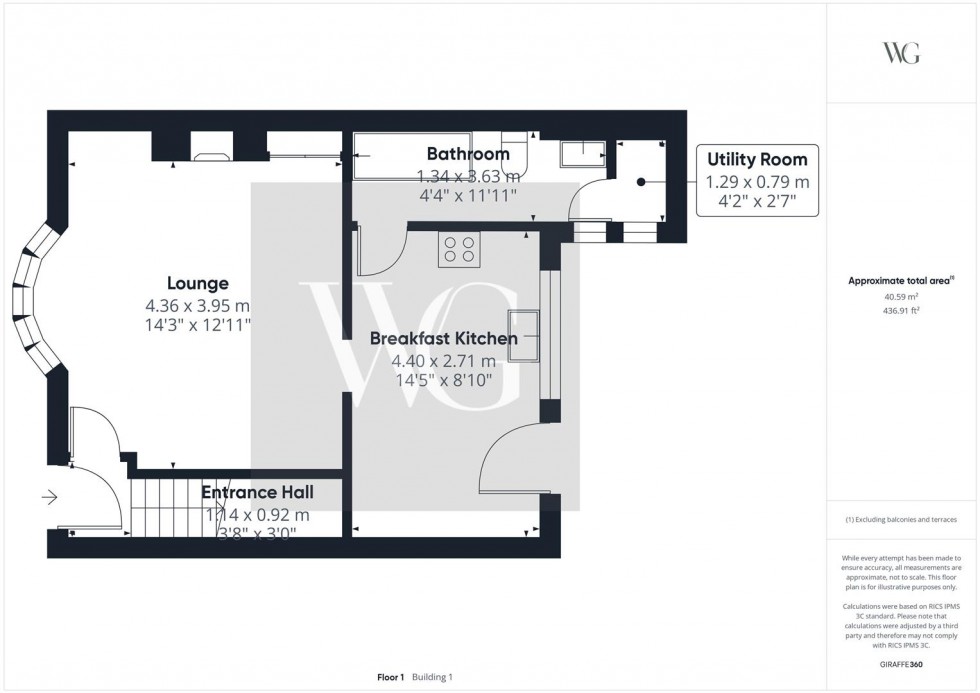
ENTRANCE HALL (1.12m x 0.91m)
With composite door into, laminate flooring and stairs leading off.
LOUNGE (4.34m x 3.94m)
With bay window to front elevation, TV point, radiator, laminate flooring, storage cupboard to recess and electric stove in situ.
BREAKFAST KITCHEN (4.39m x 2.69m)
With modern range of wall and base units, breakfast bar, integrated dishwasher and fridge, electric oven, hob and extractor, white ceramic sink with taps, tiled splash back, laminate flooring, radiator, window and door to rear elevation. Coving and ceiling spotlighting. Door to bathroom.
BATHROOM (1.32m x 3.63m)
A modern white suite comprising panelled bath with electric shower over, pedestal wash hand basin, low level wc, ceiling spotlighting, coving, laminate flooring, heated towel rail and window to side elevation.
UTILITY (1.27m x 0.79m)
With wall mounted gas central heating boiler, space and plumbing for washing machine and window to side elevation.
LANDING (1.02m x 0.89m)
A split level landing, window to side elevation and door to.
BEDROOM 1 (4.50m x 2.90m)
A spacious bedroom with range of built-in cupboards, bay window to front elevation, radiator and door to en-suite.
EN-SUITE (2.11m x 1.37m)
With modern white suite comprising, quadrant shower cubicle with shower over, pedestal wash hand basin and low level wc, window to front elevation, heated towel ladder, vinyl flooring and part tiled walls.
BEDROOM 2 (3.73m x 3.35m)
With window to rear elevation, radiator and wardrobe. Super garden views.
BEDROOM 3 (2.72m x 2.39m)
With window to rear elevation, radiator and super garden views.
GARDEN
The property offers a shallow frontage with parking, side driveway with gated access to the large rear garden which is mainly laid to lawn with two timber garden sheds, brick built garden/sun room with garden store. Patio, seating areas, shrub borders and trees. Gated access onto Orchard Close.
PARKING
There is parking to the front of the property.
TENURE
We understand that the property is Freehold.
SERVICES
All mains services are connected.
ENERGY PERFORMANCE CERTIFICATE
The energy performance rating is TBC.
COUNCIL TAX BAND
The council tax banding is B.
NOTE




