Scagglethorpe, Malton, YO17 | Guide Price £650,000


Set within a peaceful yet accessible location, this attractive parcel of land extends to approximately one acre and offers an excellent opportunity for leisure, holiday, or lifestyle use.

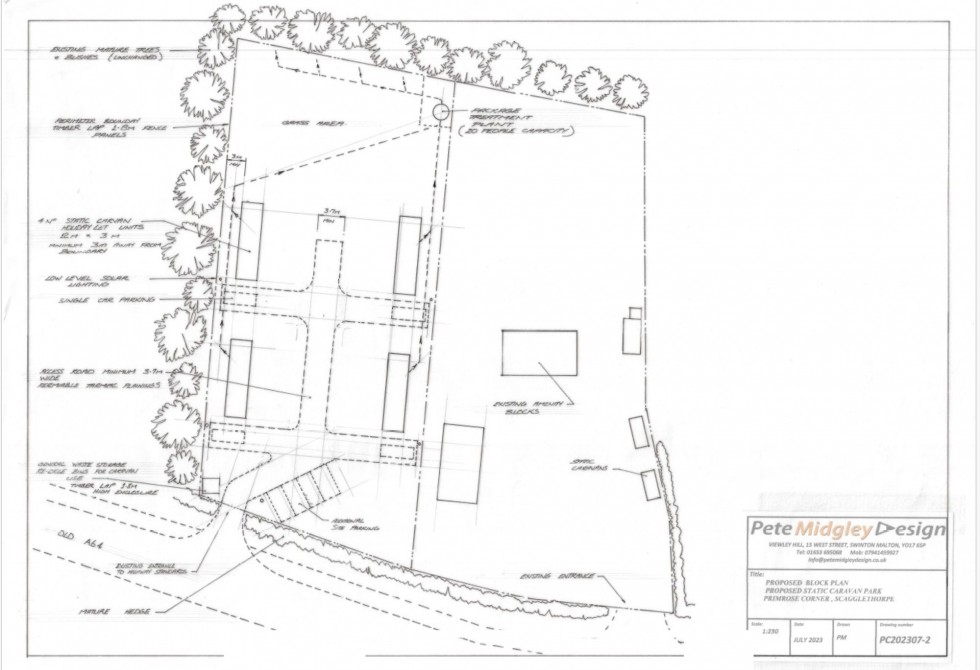
The site benefits from planning permission for the siting of four static caravans or lodges, together with two amenity buildings, providing flexibility for a variety of holiday or recreational arrangements. The grounds are well proportioned, allowing ample space for a practical and appealing layout, including landscaping and parking, ensuring the approved scheme can be implemented with ease.

The amenity buildings are thoughtfully positioned to complement the proposed caravan/lodge accommodation, supporting the overall functionality and convenience of the site.

It should be noted that both amenity buildings have been adapted for residential use, and a retrospective planning application has been submitted to regularise this change. In the event that consent is not granted, the buildings can be readily reinstated to their approved use as amenity buildings in accordance with the existing planning permission.

A static caravan may also be available by separate negotiation.

Overall, this is a versatile and well-located plot with established planning consent in place, offering immediate potential along with future flexibility, subject to the necessary approvals.

Prospective purchasers are advised to satisfy themselves as to the current planning position by making direct enquiries with North Yorkshire County Council. Specific reference to planning approvals 18/0016/FUL, 21/01223/FUL, ZE23/05028/FUL, ZE24/00543/FUL

Floorplan for Scagglethorpe, Malton, YO17
EPC Graph for Scagglethorpe, Malton, YO17